聚焦企业动态,洞察行业前沿,发展新方向,赋能未来
近日,中桠科技集团发展历程中迎来里程碑式节点——集团总部大楼(中桠中心)建设方案正式公示,标志着集团扎根钱塘、深耕湾区的战略布局迈入实质性推进阶段,一座融合绿色生态与现代智慧的企业新地标即将崛起于江海之城核心板块。

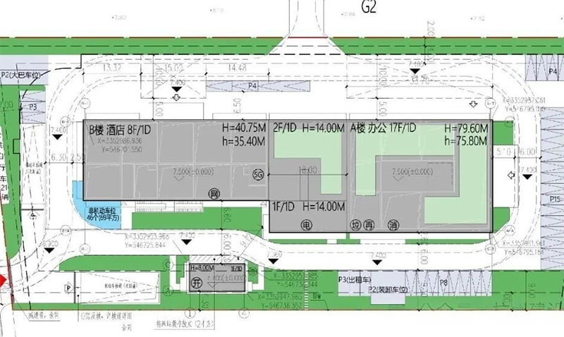
回溯历程,2025年10月16日,钱塘区江海之城单元核心地块成功出让,其中QT080406-156地块由浙江景林数字科技有限公司(中桠科技集团)竞得,定向建设中桠科技集团总部。该地块坐落于地铁7、8号线青六中路站南侧,北至河景路,东至青六中路,西临规划道路,南接杭政储出【2025】114号地块,地理位置优越,立体交通网络通达,坐拥江海之城“湾区门户、新城客厅”的核心发展优势。
作为集团践行“中联生态,桠链共赢”核心理念的重要载体,中桠中心总部大楼以“绿色可持续”为核心设计导向,深度融合自然生态与现代办公场景,致力于打造资源高效利用、环境友好共生的创新产业平台。



从功能布局来看,大楼将精准承载集团战略发展需求,内设科创总部、设计总部、营销总部三大核心功能区,构建集研发创新、设计规划、市场运营于一体的全链条产业中枢,为集团深耕智能系统门窗、新型建材等核心领域提供强劲支撑。同时,项目将引入国内知名轻奢型酒店、特色健康餐饮及亲子游乐等多元业态,完善区域商业配套与公共服务功能,为城市发展注入新活力,助力江海之城打造产城人融合的现代化新城样板。

此次中桠中心总部大楼建设方案的公示,不仅是集团规模化发展的重要跨越,更是集团与钱塘区携手共进、共谋发展的生动实践。未来,中桠科技集团将以总部大楼建设为契机,充分依托钱塘区“一带两城”战略布局的发展红利,持续深化科技创新,拓展产业边界,以更高标准、更优品质助力区域经济高质量发展,书写企业与城市共生共荣的新篇章!